1300 006 656

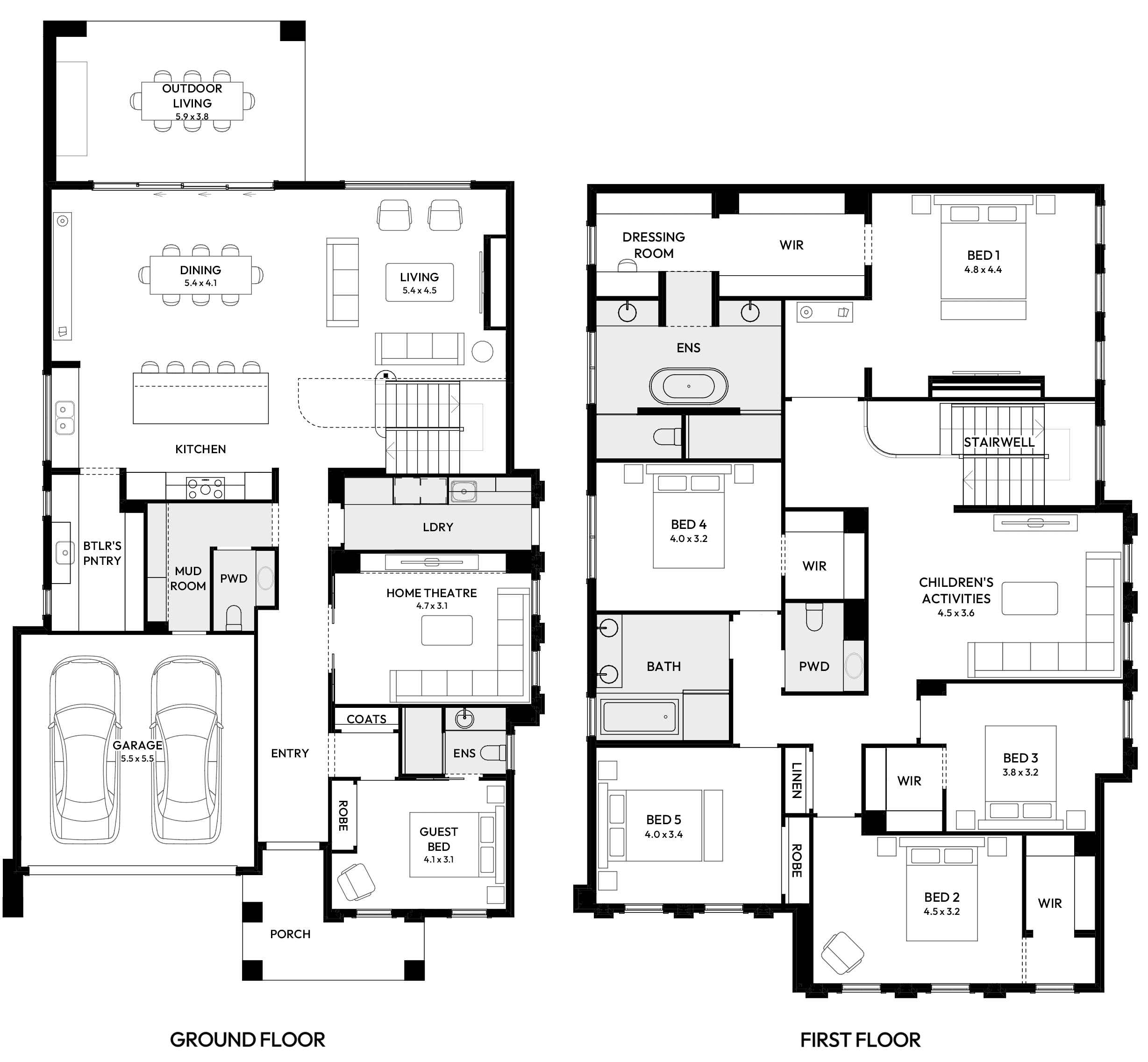
Floorplan

M Series

Brampton 44

5
2
2
3
2
14.5m
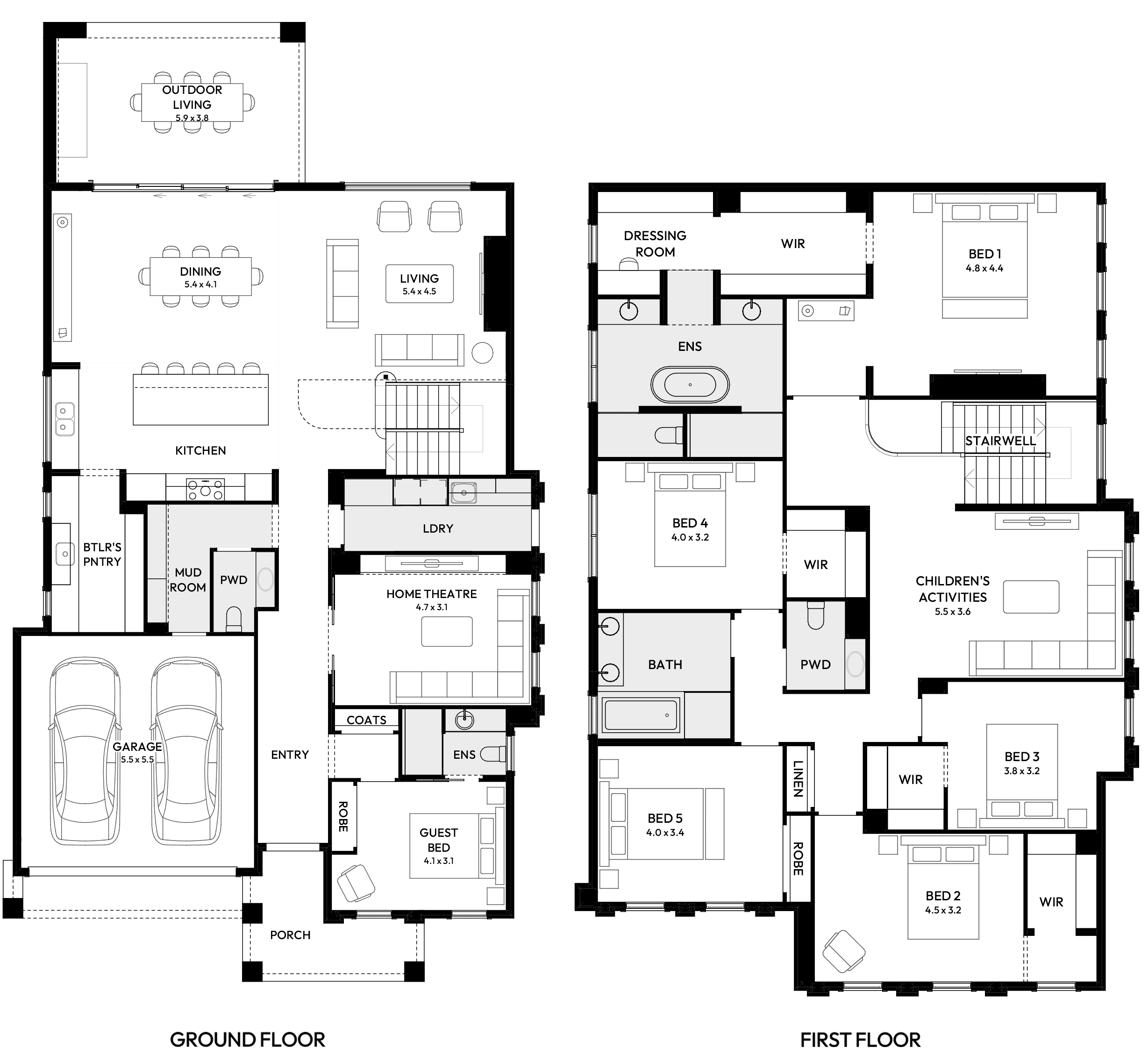
Brampton 44 House Design Floor plan
M Series

Brampton 44

5
2
2
3
2
14.5m
House Dimensions
House Width: 12.5m House Depth: 21.2m Total: 416.7m²
Room Dimensions
Dining
5.4m x 4.1m
Living
5.4m x 4.5m
Guest bed
4.1m x 3.1m
Home Theatre
4.7m x 3.1m
Garage
5.5m x 5.5m
Outdoor Living
5.9m x 3.8m
Bed 1
4.8m x 4.4m
Bed 2
4.5m x 3.2m
Bed 3
3.8m x 3.2m
Bed 4
4.0m x 3.2m
Bed 5
4.0m x 3.4m
Children's Activities
4.5m x 3.6m

See all versions and options available for this home design family.

View Home Design

Display Home Location

Brampton 44 House Design Kitchen
image upload c_limit,f_auto,h_900 v1764625724 home-designs brampton displays brampton-44-homeworld-oran-park brampton-44-house-design-dining-kitchen
Brampton 44 House Design Kitchen
Brampton 44 House Design Living
Brampton 44 House Design Bedroom in Luxe style
Brampton 44 House Design Laundry in Luxe style
Brampton 44 House Design Childrens Activities in Luxe style
Brampton 44 House design Bedroom
Brampton 44 House design Kids Bedroom
Brampton 44 House design Stairwell
Brampton 44 House design Butlers Pantry in Luxe style

HomeWorld Oran Park

22 Allambie Circuit, Oran Park NSW 2570
Get Directions
Sunday
10am - 5pm
Monday
10am - 5pm
Tuesday
10am - 5pm
Wednesday
10am - 5pm
Thursday
10am - 5pm
Friday
10am - 5pm
Saturday
10am - 5pm
Join us for our HomeWorld Oran Park Grand Opening this Sunday 15th March from 10am - 1pm. There will be a bunch of free giveaways, free Gelato and the Gold FM street team will be on site bringing the party vibes.
View Display Location

Contact Us

Please complete the enquiry form and someone from our team will be in contact within 24 hours.

Alternatively you can see more contact details on the contact page or give a New Home Consultant a call.